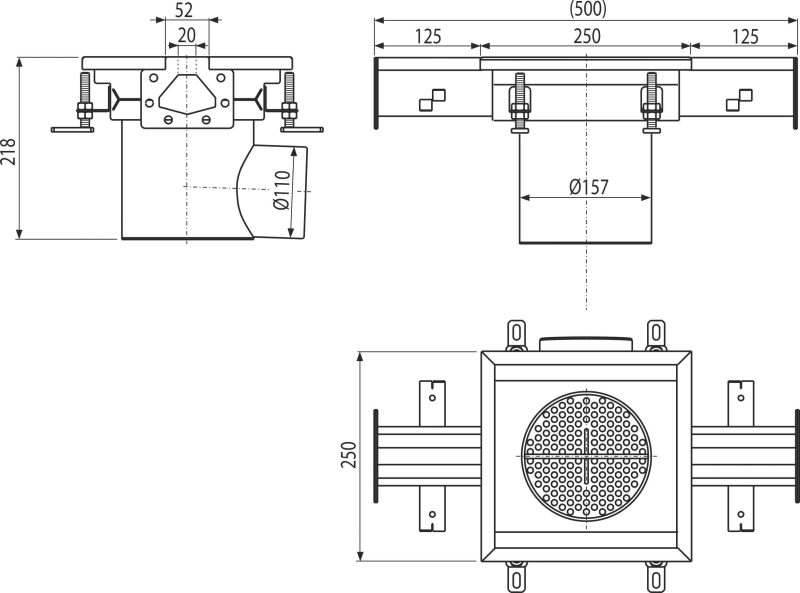
Industrijski tačkasti slivnik sa prorezanim ulazima 250x250, inox AISI 316L

APR7-1221-20

Mokri sifon za mirise50 mm
  • Za drenažu velikih industrijskih objekata i ostalih komercijalnih objekata unutar zgrada, npr. u hemijskoj i prehrambenoj industriji
  • Za odvodnju sa malim protokom vode
  • Industrijski slivnik od nerđajućeg čelika (termički obrađen kiseljenjem i pasivizacijom), ovaj postupak garantuje da nerđajući čelik i nakon nekoliko godina zadržava svojstva i pouzdan rad
  • Snažno ankerisanje u betonu sa jednostavno podesivim nogama i bočnim ankerima
  • Podesiva visina u rasponu od 85-125 mm
  • Korišćeno zaptivanje osigurava potpuno vodonepropusni spoj
  • Jednostavno čišćenje i održavanje
  • Materijal podnog slivnika: nerđajući čelik 1,5 mm, DIN 1.4404
  • EN 1253-1
Količina (pakovanje) 1 kom
Količina (paleta) - kom
Dimenzije (komad) 500×250×218 mm
Težina (komad) 5,1217 kg
Težina (pakovanje) 5,1217 kg
Težina (paleta) - kg
  • Podni slivnik
  • Zaptivka 2 kom
  • Podesive noge 4 kom
  • Cedijka za hvatanje prljavštine
  • Sifon za mirise
  • Set za fiksiranje
Šifra proizvodaEANTehnički list
APR7-1221-208595580573751Technický list